Este sitio web necesita javascript para funcionar. Por favor, usa un navegador compatible con él o actívalo en caso de que esté desactivado.

Anuncios clasificados en España
La prensa de hoy, televisión, radio y el tiempo
Viernes, 23 de Enero
- 2026
URBANIZABLE-HECTáREA
 
OFERTA URBANIZABLE-HECTáREA (Selva, Balears, Illes) 0007178681 Hace 9 horas

TERRENO PARCELA URBANA EN BALEARES,SELVA

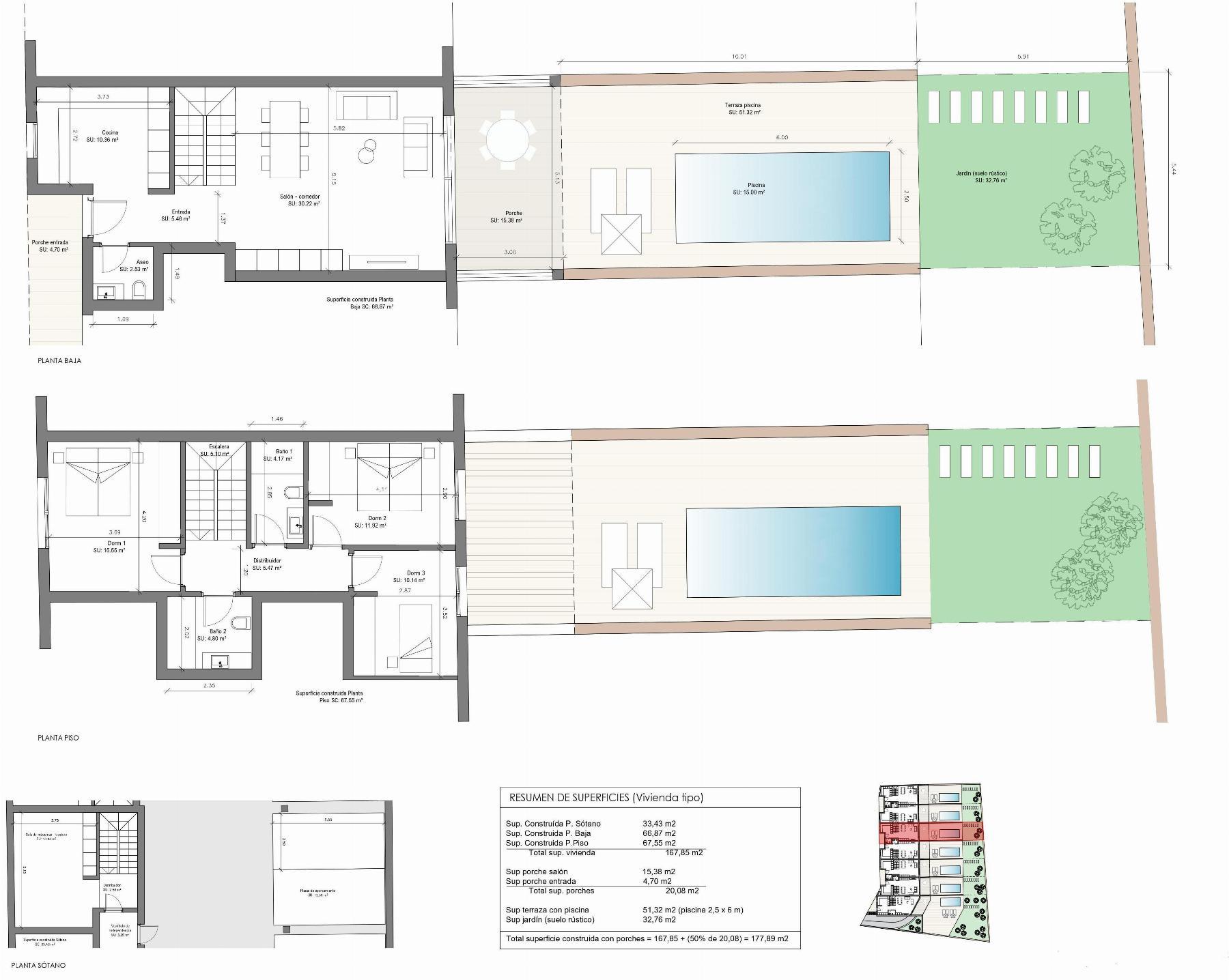
Terreno Parcela Urbana, 0 dormitorios, 0 baños, 0 garajes, Urbanizable, en Selva, Baleares Solar urbano con gran potencial residencialSe ofrece solar de aproximadamente 1.481 m², de los cuales 1.100 m² son suelo urbano, actualmente en proceso de parcelación para la creación de cuatro solares urbanos y una franja posterior de suelo rústico destinada a zonas verdes y servidumbres.El proyecto de parcelación se encuentra en fase de aprobación, con previsión de resolución en breve. El suelo rústico trasero se plantea como zona común/jardín, sin posibilidad edificatoria, repartiendo su valor proporcionalmente entre las parcelas urbanas de la siguiente manera:- Parcela A: 278,05 m²- Parcela B: 274,60 m²- Parcela C: 272,10 m²- Parcela D: 315,65 m²- Parcela E (zona rural, no edificable): 340,60 m²Potencial edificatorio destacado:Posibilidad de hasta 7-8 viviendas unifamiliares.Edificación permitida en sótano + planta baja + una planta piso.Profundidad edificable de 12 m, más hasta 13 m adicionales para construcciones auxiliares como porches, piscina, barbacoas, etc.Ideal para proyecto residencial unifamiliar o desarrollo a medida para inversores.El solar se comercializa en conjunto. Existe la posibilidad de venta futura con proyecto básico, aunque actualmente no se ha definido una tipología cerrada para mantener flexibilidad.Como mejora adicional, se está gestionando la eliminación de una torre de media tensión.Una excelente oportunidad para promotores o inversores que busquen un solar con alta capacidad de desarrollo en un entorno tranquilo.

Estadísticas

547 Veces listado Hoy
2 Veces pulsaron Contactar
0 Envíos de Email
2 Veces Compartido
0 Veces Seleccionado
0 Veces pulsaron Llamar
0 Veces pulsaron Whatsapp
0 Veces pulsaron Video
0 Veces pulsaron Mapa
0 Veces pulsaron Web
0 Veces vieron la Tienda
0 Veces vieron las Fotos
1.219.000,00 €
Calcular hipoteca






UBICACIÓN



39.4872168,2.8940595





FOTOS



Terreno Parcela Urbana en Baleares,Selva

Visualizaciones del anuncio


547 Veces listado Hoy

  Contacto   Compartir      Denunciar
            
Anuncios.es
Publicar anuncios en España