Este sitio web necesita javascript para funcionar. Por favor, usa un navegador compatible con él o actívalo en caso de que esté desactivado.

Anuncios clasificados en España
La prensa de hoy, televisión, radio y el tiempo
Viernes, 05 de Diciembre
- 2025
LOCALES COMERCIALES
 
OFERTA LOCALES COMERCIALES (Valencia, Valencia/València) 0007175177 Hace 57 minutos

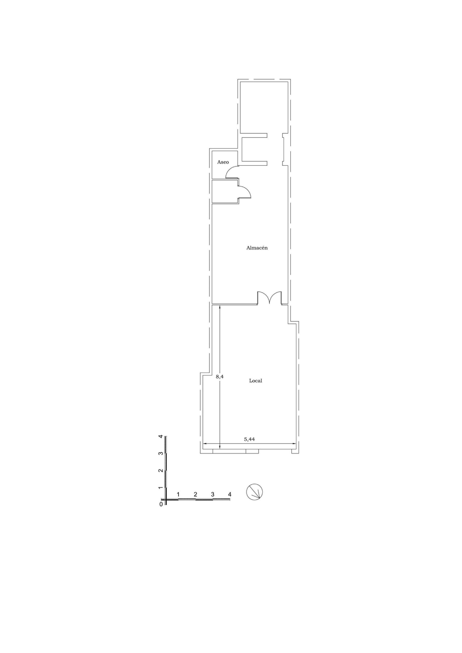
LOCAL COMERCIO EN VALENCIA,VALENCIA

Local Comercio, 2 dormitorios, 0 baños, 0 garajes, Buen estado, en Valencia, Valencia Estupendo local junto a Mercado de Algiros con mucho paso de gente en muy buena zona.Tiene dos puertas a la calle, actualmente dividido en dos estancias y dispone de un baño. Puede montar cualquier negocio.

Estadísticas

51 Veces listado Hoy
0 Veces pulsaron Contactar
0 Envíos de Email
1 Veces Compartido
0 Veces Seleccionado
0 Veces pulsaron Llamar
0 Veces pulsaron Whatsapp
0 Veces pulsaron Video
0 Veces pulsaron Mapa
0 Veces pulsaron Web
0 Veces vieron la Tienda
0 Veces vieron las Fotos
110.000,00 €
ALGIROS
Calcular hipoteca






UBICACIÓN



39.46918922849655,-0.3530001148576179





FOTOS



Local Comercio en Valencia,Valencia

Visualizaciones del anuncio


51 Veces listado Hoy

  Contacto   Compartir      Denunciar
            
Anuncios.es
Publicar anuncios en España