Este sitio web necesita javascript para funcionar. Por favor, usa un navegador compatible con él o actívalo en caso de que esté desactivado.

Anuncios clasificados en España
La prensa de hoy, televisión, radio y el tiempo
Viernes, 19 de Diciembre
- 2025
LOCALES COMERCIALES
 
OFERTA LOCALES COMERCIALES (Cádiz) 0007169908 Hace 3 meses

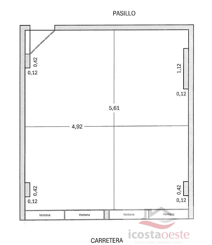
LOCAL EN CáDIZ,EL PUERTO DE SANTA MARíA

Local 1 dormitorios, 0 baños, 0 garajes, Buen estado, en El Puerto de Santa María, Cádiz Local en alquiler en edificio de oficinas (Edificio Alfa), en Avda. de Fuentebravía, zona de Pinar Alto. Local en primera planta, con mucha luz natural, enclavado en edificio de oficinas con servicios comunes incluidos. En primera planta. Bolsa de aparcamiento. De muy fácil acceso desde carretera y con numerosos negocios alrededor. Ideal para tu nueva oficina.De acuerdo con lo prevenido en el Decreto 218/2005, de 11 de octubre, se informa al cliente que los honorarios de intermediación y otros posibles gastos inherentes al alquiler no están incluidos en el precio.

Estadísticas

1 Veces listado Hoy
23 Veces pulsaron Contactar
0 Envíos de Email
19 Veces Compartido
0 Veces Seleccionado
0 Veces pulsaron Llamar
0 Veces pulsaron Whatsapp
0 Veces pulsaron Video
0 Veces pulsaron Mapa
0 Veces pulsaron Web
0 Veces vieron la Tienda
0 Veces vieron las Fotos
EDIFICIO ALFA
27 m²
Calcular hipoteca






UBICACIÓN



36.59887968297657,-6.24375179035708





FOTOS



Local  en Cádiz,El Puerto de Santa María

Visualizaciones del anuncio


1 Veces listado Hoy

  Contacto   Compartir      Denunciar
            
Anuncios.es
Publicar anuncios en España