Este sitio web necesita javascript para funcionar. Por favor, usa un navegador compatible con él o actívalo en caso de que esté desactivado.

Anuncios clasificados en España
La prensa de hoy, televisión, radio y el tiempo
Jueves, 25 de Diciembre
- 2025
LOCALES COMERCIALES
 
OFERTA LOCALES COMERCIALES (Langreo, Asturias) 0007133993 Hace 14 meses

LOCAL EN ASTURIAS,LANGREO

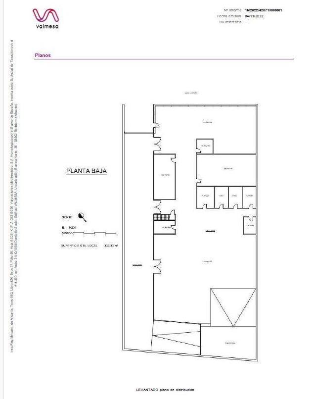
Local 2 dormitorios, 0 baños, 0 garajes, Semi reformado, en Langreo, Asturias Descubre este estupendo local comercial a pie de calle, ideal para emprendedores y empresarios. Con una superficie aproximada de 2.463 m², este espacio se presenta como una opción versátil y perfectamente divisible en su interior. Anteriormente utilizado como concesionario de coches, cuenta con dos amplias plantas: la planta baja de aproximadamente 1.500 m² y un sótano de igual tamaño, lo que permite una gran variedad de usos, desde gimnasios hasta clínicas o talleres.Su gran escaparate a la calle principal garantiza una excelente visibilidad para cualquier tipo de negocio. Ubicado en la céntrica calle La Unión, a pocos pasos del centro, disfrutarás de todos los servicios esenciales a tu alcance y de excelentes comunicaciones tanto por transporte público como en coche.Este local no solo representa una oportunidad para iniciar un nuevo proyecto, sino también para ampliar un negocio existente. ¡No dejes pasar esta ocasión y transforma este espacio en el éxito que siempre soñaste!

Estadísticas

2 Veces listado Hoy
22 Veces pulsaron Contactar
0 Envíos de Email
21 Veces Compartido
0 Veces Seleccionado
0 Veces pulsaron Llamar
0 Veces pulsaron Whatsapp
0 Veces pulsaron Video
0 Veces pulsaron Mapa
0 Veces pulsaron Web
0 Veces vieron la Tienda
0 Veces vieron las Fotos
480.000,00 €
La Felguera
Calcular hipoteca






UBICACIÓN



43.3005769,-5.6851802





FOTOS



Local  en Asturias,Langreo

Visualizaciones del anuncio


2 Veces listado Hoy

  Contacto   Compartir      Denunciar
            
Anuncios.es
Publicar anuncios en España