Este sitio web necesita javascript para funcionar. Por favor, usa un navegador compatible con él o actívalo en caso de que esté desactivado.

Anuncios clasificados en España
La prensa de hoy, televisión, radio y el tiempo
Viernes, 19 de Diciembre
- 2025
ESTUDIOS
 
OFERTA ESTUDIOS (Barcelona, Barcelona) 0007176067 Hace 3 horas

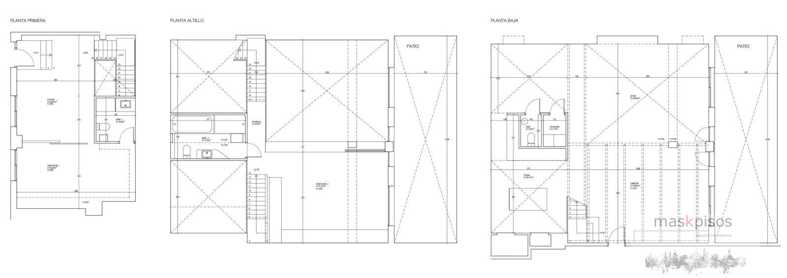
ESTUDIO DúPLEX EN BARCELONA,BARCELONA

Estudio Dúplex, 2 dormitorios, 2 baños, 1 garajes, Buen estado, en Barcelona, Barcelona Loft en Barcelona cerca del parque Güell. Vivienda muy bien comunicada, a escasos metros de metro y autobuses con acceso al Pº de Gracia en menos de 15min.Tiene una superficie total de 265m2 en 3 niveles y techos con altura de 8m.En la planta baja, la vivienda dispone de amplios espacios a doble altura donde encontraremos un salón/comedor con mesa para 8-10 comensales. También se ubica una cocina americana totalmente equipada con un diseño actual y moderno, y dos amplias despensas a doble altura También encontraremos en esta planta principal un aseo para invitados y una cuarto de lavandería equipado con lavadora y secadora.Subiendo la escalera de cristal, en la primera planta nos encontramos con la zona de descanso. Una habitación principal de gran tamaño con vestidor y amplios armarios de gran almacenaje. El dormitorio principal también cuenta con un sistema de cerramiento que ofrece la posibilidad de disfrutar del concepto abierto de la vivienda o tener una mayor privacidad dependiendo de la situación. También en esta misma planta está el baño principal completamente equipado donde encontraremos una amplia ducha de obra y por separado una gran bañera de hidromasaje.En la tercera planta actualmente se encuentra ubicado un espacioso despacho, junto a otra habitación polivalente de gran tamaño con diferentes usos como: dormitorio de invitados, salón, sala de reuniones y que cuenta también con un baño totalmente equipado. Esta planta tiene su propio acceso completamente independiente al resto de la vivienda lo cual permite un alto grado de privacidad si se le da esta planta uso profesional, e incluso se puede plantear hacer un apartamento privado y convertir la propiedad en dos viviendas independientes.También dispone de plaza de parking en la misma finca.

Estadísticas

287 Veces listado Hoy
0 Veces pulsaron Contactar
0 Envíos de Email
0 Veces Compartido
0 Veces Seleccionado
0 Veces pulsaron Llamar
0 Veces pulsaron Whatsapp
0 Veces pulsaron Video
0 Veces pulsaron Mapa
0 Veces pulsaron Web
0 Veces vieron la Tienda
0 Veces vieron las Fotos
630.000,00 €
226m² útiles
2dorm.
3baños
Calcular hipoteca






UBICACIÓN



41.4193091956928,2.14946836773265





FOTOS



Estudio Dúplex en Barcelona,Barcelona

Visualizaciones del anuncio


287 Veces listado Hoy

  Contacto   Compartir      Denunciar
            
Anuncios.es
Publicar anuncios en España