Este sitio web necesita javascript para funcionar. Por favor, usa un navegador compatible con él o actívalo en caso de que esté desactivado.

Anuncios clasificados en España
La prensa de hoy, televisión, radio y el tiempo
Miércoles, 01 de Octubre
- 2025
ESTUDIOS
 
OFERTA ESTUDIOS (Doñinos de Salamanca, Salamanca) 0007170230 Hace 20 horas

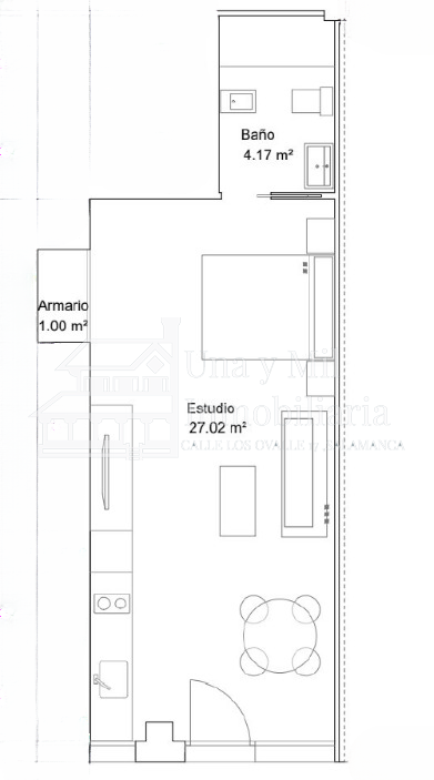
ESTUDIO EN SALAMANCA,SALAMANCA

Estudio 0 dormitorios, 1 baños, 0 garajes, Nuevo, en Salamanca, Salamanca Te presentamos este estudio en construcción en Salamanca, ideal para quienes buscan una vivienda práctica, moderna y bien ubicada. Con 27 m² distribuidos de forma funcional, será una excelente opción como primera vivienda, inversión o para quienes valoran la comodidad de un espacio compacto y eficiente.El estudio contará con cocina amueblada, pensada para aprovechar al máximo cada rincón. Su diseño moderno y materiales de calidad garantizan confort y estilo en un entorno acogedor.Ubicado en una zona tranquila, con buena conexión al transporte público y todos los servicios cercanos, este estudio es una oportunidad única para estrenar hogar en Salamanca.¡Solicita más información y asegúrate de no dejar pasar esta ocasión!

Estadísticas

147 Veces listado Hoy
0 Veces pulsaron Contactar
0 Envíos de Email
2 Veces Compartido
0 Veces Seleccionado
0 Veces pulsaron Llamar
0 Veces pulsaron Whatsapp
0 Veces pulsaron Video
0 Veces pulsaron Mapa
0 Veces pulsaron Web
0 Veces vieron la Tienda
0 Veces vieron las Fotos
128.000,00 €
27m² útiles
1baños
Calcular hipoteca






UBICACIÓN



40.9674659,-5.647206





FOTOS



Estudio  en Salamanca,Salamanca

Visualizaciones del anuncio


147 Veces listado Hoy

  Contacto   Compartir      Denunciar
            
Anuncios.es
Publicar anuncios en España