Este sitio web necesita javascript para funcionar. Por favor, usa un navegador compatible con él o actívalo en caso de que esté desactivado.

Anuncios clasificados en España
La prensa de hoy, televisión, radio y el tiempo
Lunes, 22 de Diciembre
- 2025
CHALETS
 
OFERTA CHALETS (Torrent, Valencia/València) 0007174583 Hace 4 semanas

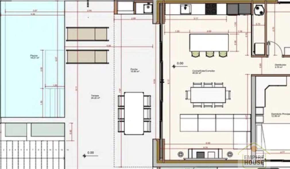
CHALET UNIFAMILIAR EN VALENCIA,TORRENT

Chalet Unifamiliar, 2 dormitorios, 2 baños, 0 garajes, Nuevo, en Torrent, Valencia Urbano. Precio del chalet terminado. Magníficas vistas. Actualmente se ha presentado proyecto en el ayuntamiento a la espera de concesión de permiso para construcción, ahorrando más de un año en plazos.El proyecto trata de una chalet independiente de una planta con espectaculares vistas y con 2 habitaciones, 2 baños, garaje, porche con barbacoa, piscina infinity y un maravilloso y amplio jardín. La vivienda dispone de un precioso ventanal de suelo a techo que otorga unas vistas y luminosidad a la casa espectaculares, una cocina abierta con isla central, amplio salón comedor, y un trastero de 40 m2. Nuevo.

Estadísticas

1 Veces listado Hoy
11 Veces pulsaron Contactar
0 Envíos de Email
10 Veces Compartido
0 Veces Seleccionado
0 Veces pulsaron Llamar
0 Veces pulsaron Whatsapp
0 Veces pulsaron Video
0 Veces pulsaron Mapa
0 Veces pulsaron Web
0 Veces vieron la Tienda
0 Veces vieron las Fotos
290.000,00 €
150m² útiles
2dorm.
2baños
Calcular hipoteca






UBICACIÓN



39.4313261,-0.6033355





FOTOS



Chalet Unifamiliar en Valencia,Torrent

Visualizaciones del anuncio


1 Veces listado Hoy

  Contacto   Compartir      Denunciar
            
Anuncios.es
Publicar anuncios en España