Este sitio web necesita javascript para funcionar. Por favor, usa un navegador compatible con él o actívalo en caso de que esté desactivado.

Anuncios clasificados en España
La prensa de hoy, televisión, radio y el tiempo
Sábado, 06 de Diciembre
- 2025
CASAS
 
OFERTA CASAS (San Felices de Buelna, Cantabria) 0007175280 Hace 1 hora

CASA EN CANTABRIA,SAN FELICES DE BUELNA

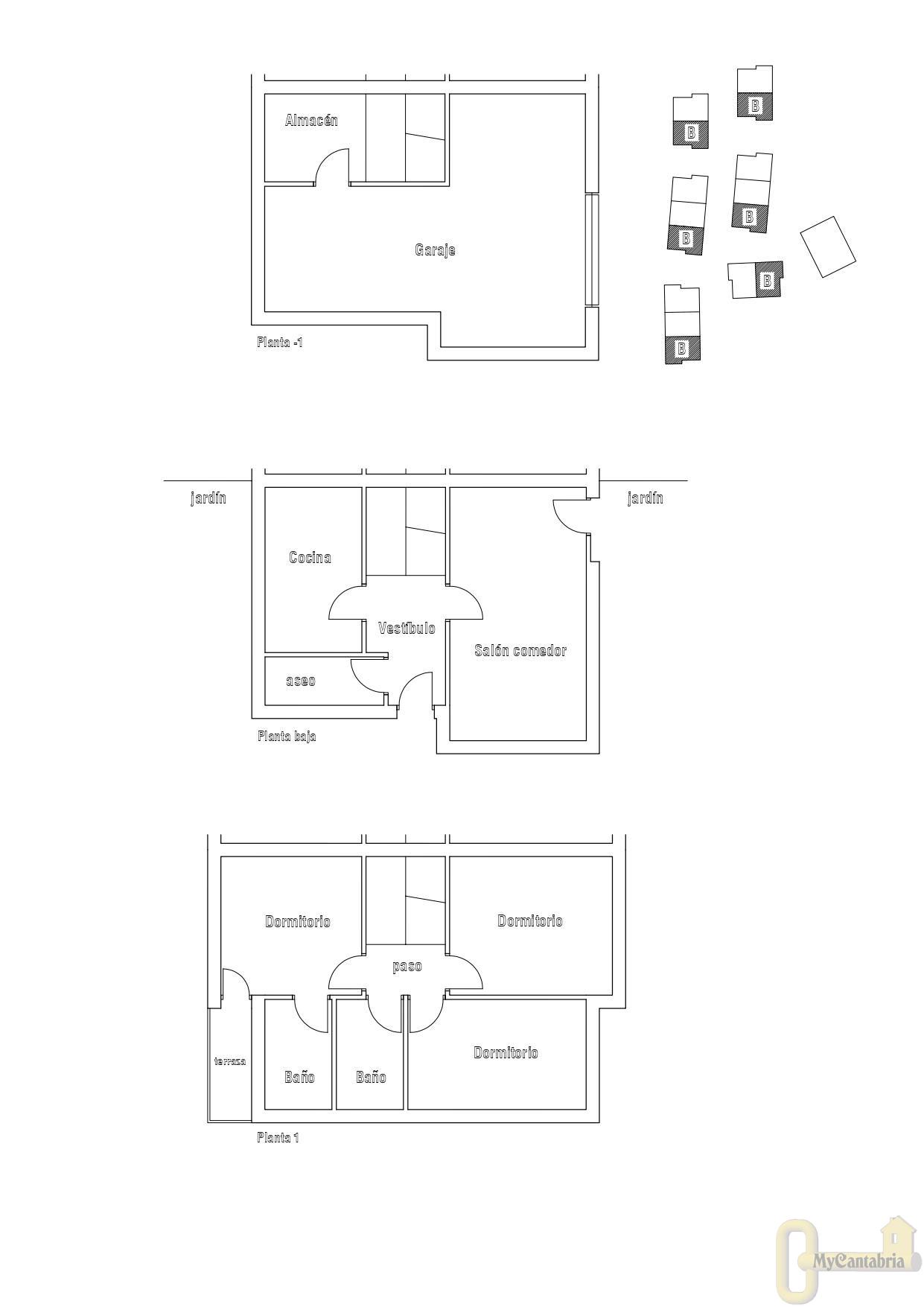
Casa 3 dormitorios, 2 baños, 1 garajes, Buen estado, en San Felices de Buelna, Cantabria Ref 5732 - MyCantabria inmobiliaria vende chalets pareados en Sovilla, San Felices de Buelna.Las viviendas tienen una superficie construida de media de 213 m2 y jardín 150 m2 aprox. Están distribuidas en tres plantas:- Planta sótano: Garaje y trastero- Planta baja: salón, cocina, aseo y jardín- Planta primera: 3 dormitorios y dos baños (uno de ellos en suit)Las viviendas se entregan a estrenar, cocina equipada según imágenes, calefacción de gas propano, se entregan sin amueblar y con los suministros sin dar de alta.Situadas en un entorno natural preciso a 10 minutos de Torrelavega y 30 de Santander.Pídanos más información sin compromiso.

Estadísticas

74 Veces listado Hoy
1 Veces pulsaron Contactar
0 Envíos de Email
0 Veces Compartido
0 Veces Seleccionado
0 Veces pulsaron Llamar
0 Veces pulsaron Whatsapp
0 Veces pulsaron Video
0 Veces pulsaron Mapa
0 Veces pulsaron Web
0 Veces vieron la Tienda
0 Veces vieron las Fotos
142.000,00 €
213m² útiles
3dorm.
3baños
Calcular hipoteca






UBICACIÓN



43.2802511,-4.0510234





FOTOS



Casa  en Cantabria,San Felices de Buelna

Visualizaciones del anuncio


74 Veces listado Hoy

  Contacto   Compartir      Denunciar
            
Anuncios.es
Publicar anuncios en España