Este sitio web necesita javascript para funcionar. Por favor, usa un navegador compatible con él o actívalo en caso de que esté desactivado.

Anuncios clasificados en España
La prensa de hoy, televisión, radio y el tiempo
Miércoles, 03 de Diciembre
- 2025
ÁTICOS
 
OFERTA ÁTICOS (Málaga) 0007172235 Hace 1 mes

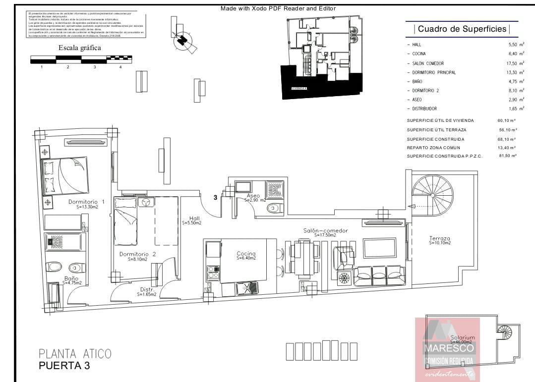
ATICO EN MáLAGA,MIJAS COSTA

Atico 2 dormitorios, 2 baños, 0 garajes, Nuevo, en Mijas Costa, Málaga !! Fabuloso Ático con terraza de 10 metros frente al salon y solarium de 40 metros !! Descubre este espectacular ático a estrenar, ubicado en una de las zonas más deseadas de Las Lagunas, justo al lado del Corte Inglés de Mijas-Costa. Con 80 m² construidos y 60 m² útiles, este hogar ofrece un diseño moderno y funcional que se adapta a tus necesidades. Al entrar, te recibe un amplio hall que da paso a un luminoso salón comedor, ideal para disfrutar de momentos inolvidables con familiares y amigos.Este ático cuenta con dos acogedores dormitorios, ambos equipados con armarios empotrados. Uno de ellos dispone de un baño en suite con plato de ducha, garantizando privacidad y confort. La cocina abierta al salón te permitirá interactuar con tus invitados mientras preparas deliciosas comidas. Desde el salón, accedes a una amplia terraza que es perfecta para relajarte al aire libre.Pero eso no es todo. El verdadero lujo se encuentra en el solárium de 40 m², totalmente diáfano y cuadrado, donde podrás crear tu propio oasis privado. Equipado con tomas de luz y agua, es el lugar ideal para disfrutar del sol o organizar reuniones al aire libre. Además, el ático cuenta con altos estándares de calidad, incluyendo suelo, luces LED en el techo y aire acondicionado centralizado frío/calor.La ubicación es inmejorable: en una zona tranquila y de fácil acceso a la autovía Málaga-Marbella. Este inmueble también ofrece la posibilidad de adquirir un trastero opcional y cuenta con acceso adaptado para personas con movilidad reducida. No dejes pasar la oportunidad de vivir en este maravilloso ático que combina comodidad, estilo y una ubicación privilegiada. ¡Contáctanos para más información y agenda tu visita!

Estadísticas

4 Veces listado Hoy
14 Veces pulsaron Contactar
0 Envíos de Email
10 Veces Compartido
0 Veces Seleccionado
0 Veces pulsaron Llamar
0 Veces pulsaron Whatsapp
0 Veces pulsaron Video
0 Veces pulsaron Mapa
0 Veces pulsaron Web
0 Veces vieron la Tienda
0 Veces vieron las Fotos
269.000,00 €
60m²
80m² útiles
2dorm.
2baños
4.483,33€/m²
Calcular hipoteca






UBICACIÓN



36.54759987360864,-4.634374385441671





FOTOS



Atico  en Málaga,Mijas Costa

Visualizaciones del anuncio


4 Veces listado Hoy

  Contacto   Compartir      Denunciar
            
Anuncios.es
Publicar anuncios en España